Casa de vanzare in Cluj-Napoca, Andrei Muresanu ID 3303
Dotari imobil
Detalii imobil
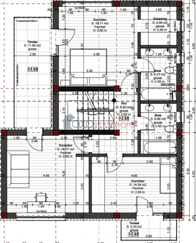
ETAJ 1: hol, 3 dormitoare, 2 bai, dressing, spatii pt depozitare, 2 terase.
Descriere imobil
Propunem spre vanzare casa cu 4 camere, cu suprafata utila de 260 mp, ce dispune de teren cu suprafata de 528 mp, situata in cartierul Andrei Muresanu, la 5 minute de Parcul Engels, intr-o locatie linistita, cu spatii verzi.
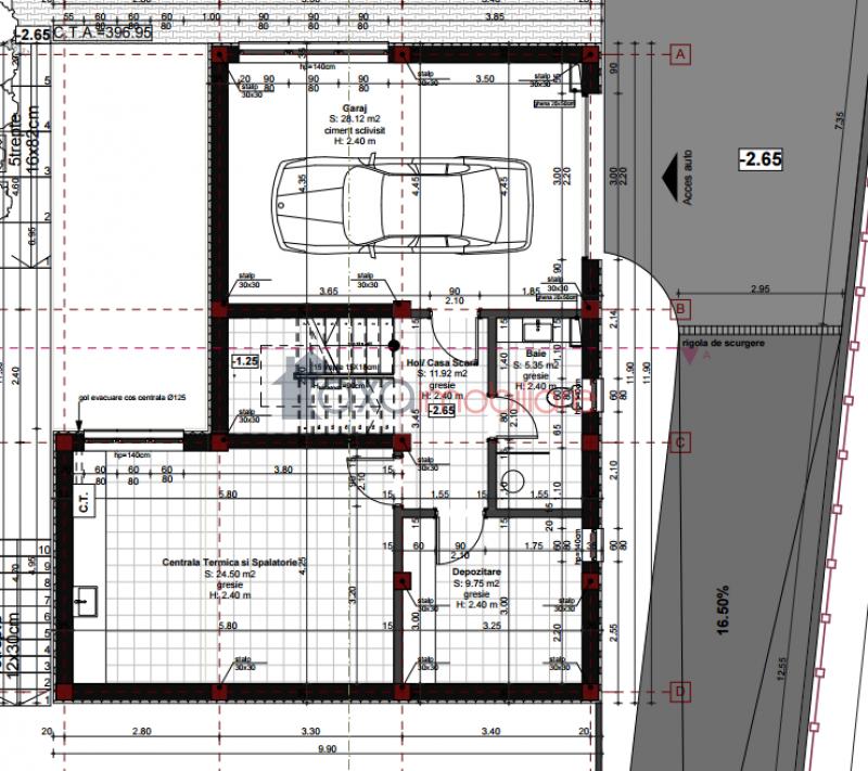
Imobilul a fost finalizat in 2015 si este dispus pe regim de inaltime S+P+1E, astfel: SUBSOL: garaj, baie, camera CT, uscator, magazie; PARTER: hol, living cu loc de luat masa, bucatarie, baie, camara, terasa;
ETAJ 1: hol, 3 dormitoare, 2 bai, dressing, spatii pt depozitare, 2 terase.
Se vinde la stadiul de semifinisat cu sapa autonivelanta, peretii gletuiti, tencuiti si dati cu lavabil.
Dotari: geamuri termopan, incalzire in pardoseala.
Opinia agentului
''Casa semifinisata, ce poate fi finisata dupa bunul plac, bine compartimentata, potrivita pentru cei care pun accent pe confort si locatie.''



