Casa 5 camere de vanzare in Floresti ID 5506
Dotari imobil
Beton
Detalii imobil
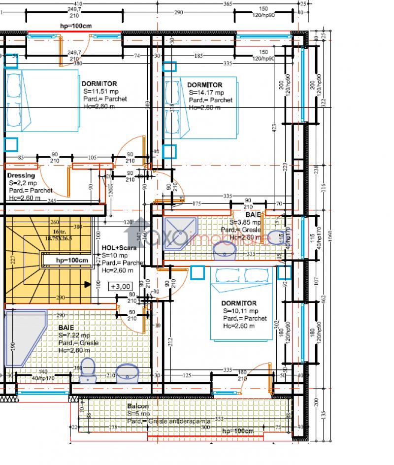
ETAJ / AL DOILEA NIVEL: 3 dormitoare, 2 bai, hol, 1 balcon.
Descriere imobil
Oferim spre vanzare duplex cu arhitectura moderna, dispus pe doua niveluri, respectiv P+E, situat in Floresti, in zona strazii Tautiului, intr-o locatie linistita si aerisita, cu acces usor spre centura.
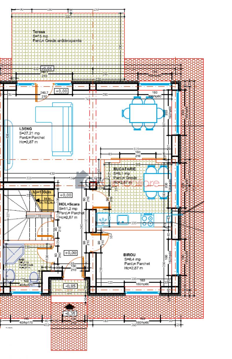
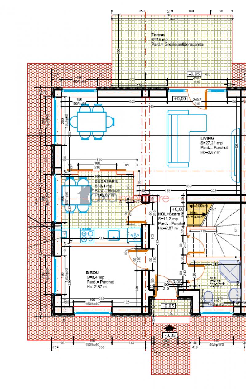
Imobilul are o suprafata utila de 120 mp, fiind impartita in 2 zone: zona de zi si zona de odihna.
La primul nivel - PARTER se afla zona de zi; compusa dintr-un living cu dining, 1 bucatarie, 1 birou, 1 hol, 1 baie, casa scarii + 1 terasa.
La al doilea nivel - ETAJ se afla zona de odihna; compusa dintr-un dormitor matrimonial cu baie proprie, 1 dormitor cu dressing, 1 dormitor simplu cu balcon, 1 hol, 1 baie comuna.
Imobilul se vinde la stadiul de semifinisat; dispune de geamuri termopan, usa la intrare, centrala termica, incalzire in pardoseala.
Termen de finalizare: Aprilie 2020.
Suprafata terenului este de 280 mp, imprejmuit.
Opinia agentului
" Arhitectura moderna, compartimentare bine gandita, confort, locatie linistita si aerisita sunt cateva aspecte importante pentru care recomand aceasta oferta. "



