Casa 5 camere de vanzare in Cluj-Napoca, Manastur ID 5631
Dotari imobil
Beton
Detalii imobil
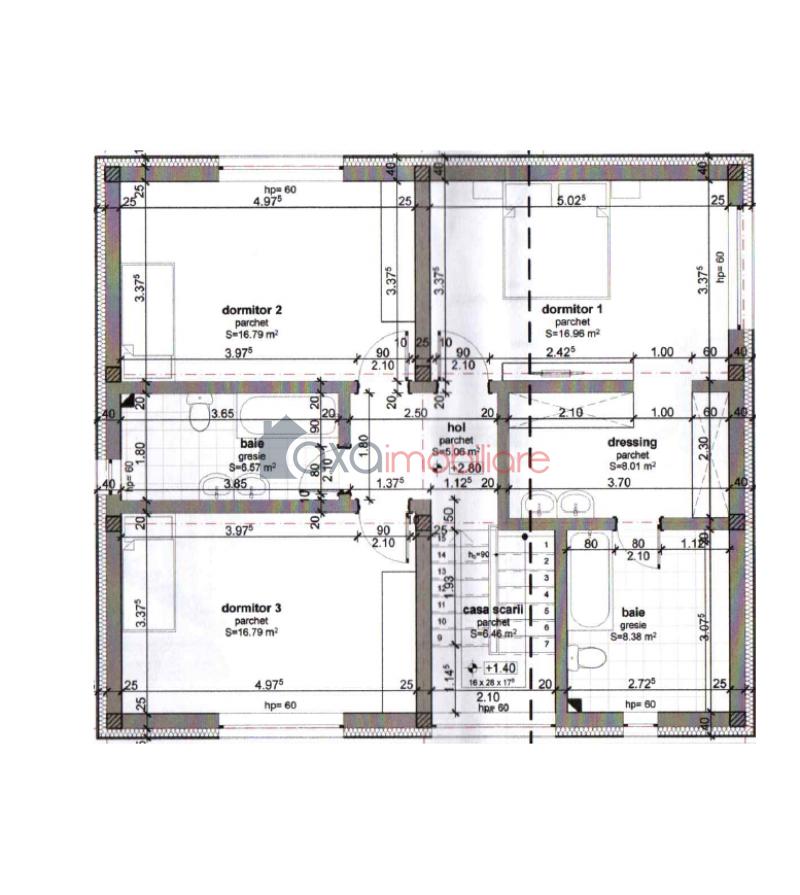
MANSARDA / Al doilea nivel: 3 dormitoare, 2 bai, 1 dressing, 1 hol (unul din dormitoare este matrimonial).
Descriere imobil
Casa cu accente moderniste, situata in Cluj-Napoca, in cartierul Manastur, pe strada Colinei, intr-o locatie frumoasa, ideala pentru familii.
Zona este linistita, aerisita, nou-dezvoltata.
Ce poate fi mai frumos decat o padure de brazi si multa verdeata in jurul casei tale, iar in acelasi timp sa fii si in imediata apropiere a facilitatilor ?
Imobilul face parte dintr-un Ansamblu de case unifamiliale cu regim de inaltime P+M, fiind spatioase si frumos compartimentate.
Vecinatati si facilitati
- Polus / Vivo Center (la 2 minute distanta; accesul poate fi atat cu masina, cat si pietonal).
- Brico Depot (acces rapid si usor).
- Statie de autobuz in apropiere.
- Acces rapid spre Calea Floresti, Bucium (cartierul Manastur).
- Acces usor spre Floresti.
Casa dispune de o suprafata construita de 212 mp, fiind compartimentata in stil modern, punand accent pe cateva aspecte precum intimitate si organizarea cat mai buna a spatiului.
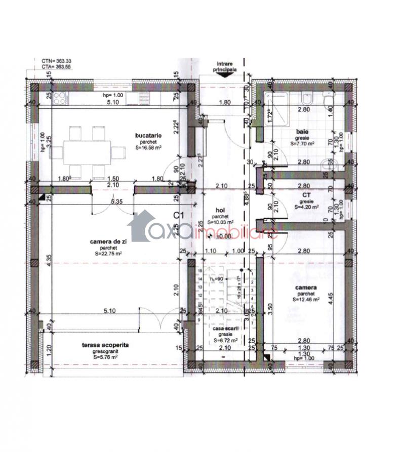
La parter este organizata zona sociala si de activitate a casei, fiind compusa dintr-o camera de zi, 1 bucatarie, 1 baie, 1 camera (ce poate fi amenajata ca si dormitor sau birou) si 1 hol.
La etaj (mansarda) este zona de intimitate si de odihna, fiind compusa din 3 dormitoare, 2 bai, 1 hol si 1 dressing. (Unul din dormitoare este matrimonial; dispune de baie proprie si de dressing).
Asadar, compartimentarea casei este gandita pe principii ce imbunatatesc viata si confortul.
Detalii despre constructie
Constructia este realizata din materiale de calitate pentru a satisface cele mai exigente cerinte ale viitorilor proprietari.
- Caramida Porotherm 25 cm.
- Termosistem de 15 Caparol Dalmatina EPS 90.
- Geamuri Tripan Salamander.
- Centrala termica Buderus (24 KW).
- Incalzire in pardoseala Rehau cu termostate Salus in fiecare camera.
- Baile au atat incalzire in pardoseala, cat si calorifere.
- Decorativa Caparol.
In ceea ce privesc utilitatile; aceasta dispune de gaz, electricitate, apa, canalizare.
Imobilul se vinde la stadiul de semifinisat cu centrala termica, geamuri termopan si usa la intrare.
Acest aspect este un avantaj pentru cei care doresc sa isi amenajeze si finiseze locuinta dupa bunul plac si propriile gusturi.
Casa dispune de 420 mp de teren, frumos amenajat pentru a petrece momente de relaxare si recreere alaturi de familie si prieteni, dar si pentru a realiza cadrul perfect al unei case de vis.
De asemenea, dispune de alei pavate, dar si de acces privat.
Pretul este negociabil in functie de modalitatea de plata.
Opinia agentului
" Recomand aceasta casa unifamiliala cu accente moderniste datorita locatiei, calitatii constructiei si compartimentarii; fiind impartita in doua zone: zona sociala / de activitate a casei si zona de intimitate / odihna. Toate acestea fiind reteta perfecta pentru imbunatatirea vietii si a confortului. "



