Casa 5 camere de vanzare in Cluj-Napoca, Iris ID 5000
Dotari imobil
Beton
Detalii imobil
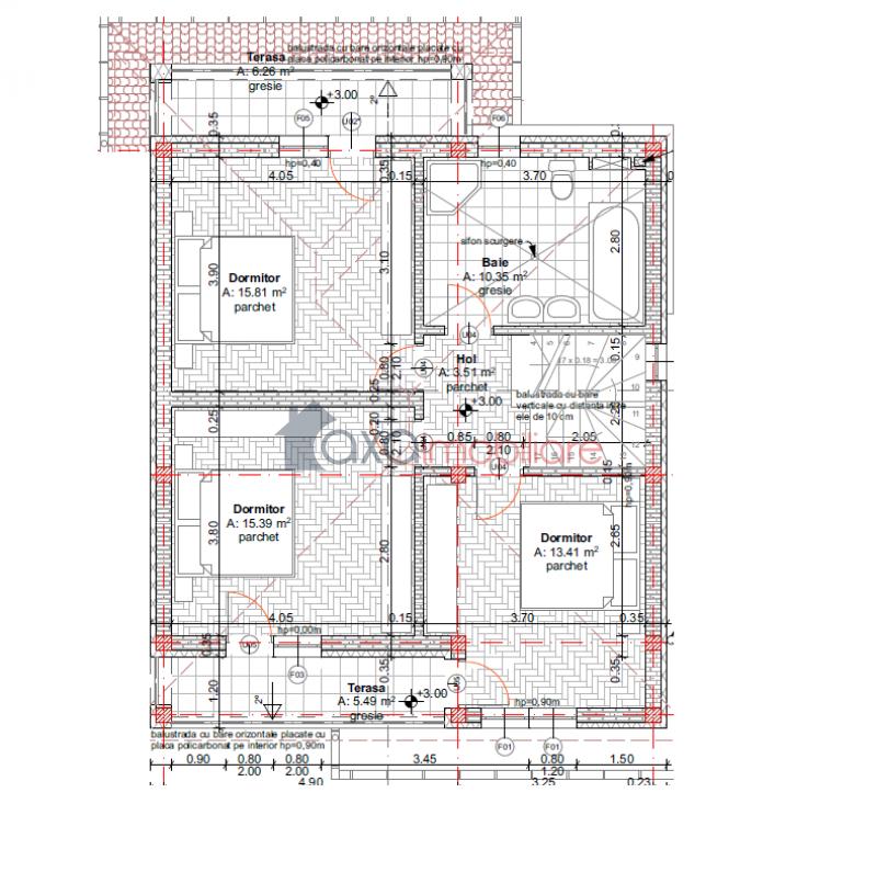
ETAJ / AL DOILEA NIVEL: 3 dormitoare, 1 baie, hol, balcon la fiecare dormitor.
Descriere imobil
Propunem spre vanzare casa individuala cu arhitectura moderna, situata in Cluj-Napoca, in cartierul Iris, intr-o locatie foarte frumoasa; linistita, ce ofera o panorama foarte frumoasa asupra zonei.
Zona este rezidentiala de case; zona ideala pentru familii.
Suprafata casei este de 150 mp, dispusa pe 2 niveluri, respectiv P+E, fiind foarte frumos compartimentata.
La primul nivel (parter), avem un living, o bucatarie, o baie, hol si un spatiu de birou.
La cel de-al doilea nivel (etaj), avem 3 dormitoare, o baie, hol; fiecare dormitor dispune de balcon.
Se vinde la stadiul de semifinisat: centrala termica, incalzire in pardoseala, geamuri termopan, usa la intrare.
Toate contoarele sunt montate.
Imobilul dispune de teren in suprafata de 436 mp.
De asemenea, in curte sunt 3 locuri de parcare, dar se pot amenaja si mai multe (in functe de cerinte).
Opinia agentului
" Recomand aceasta casa clientilor mei care doresc sa locuiasca intr-o locatie linistita, nou-dezvoltata din cartierul Iris. Casa individuala cu arhitectura moderna, frumos compartimentata. Ideala pentru o familie. "



