Casa 5 camere de vanzare in Cluj-Napoca, Dambul Rotund ID 5037
Dotari imobil
Detalii imobil
Descriere imobil
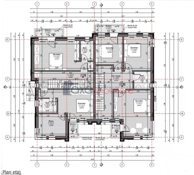
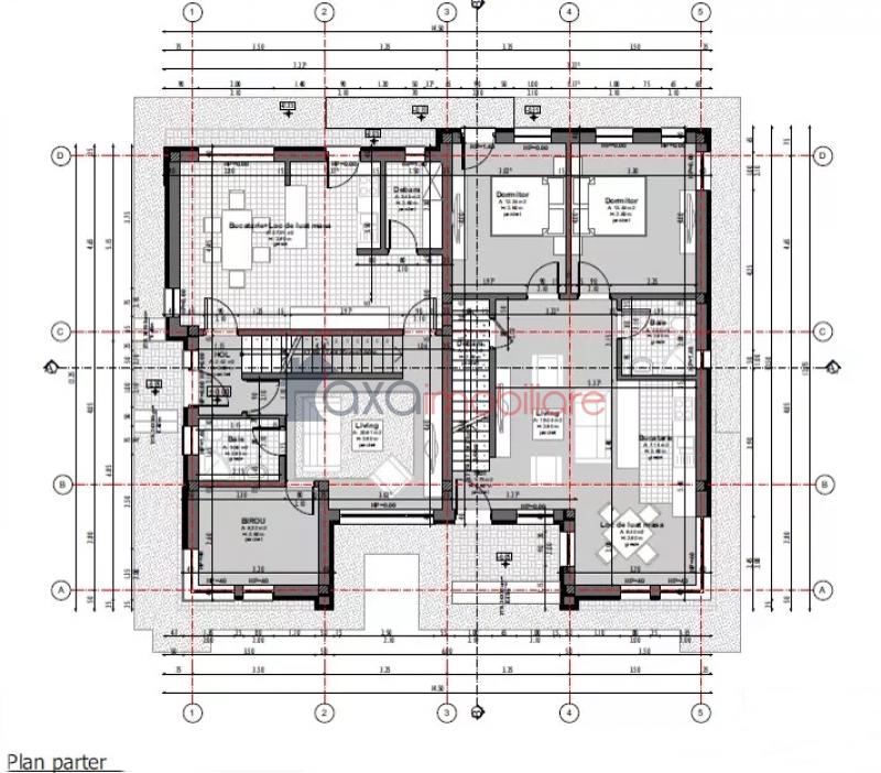
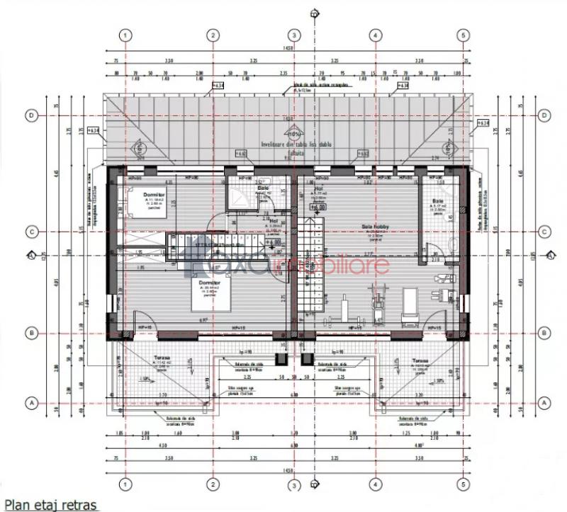
Propunem spre vanzare imobil de tip duplex, cu suprafata utila de 168 mp, dispus pe regim de inaltime P+E+Er.
Imobilul este situat in Cluj-Napoca, in cartierul Dambul Rotund.
Compartimentare: 1 living, 1 bucatarie, 4 dormitoare, 1 debara, 3 bai, balcon si terasa.
Se vinde la stadiul de semifinisat: centrala termica, incalzire in pardoseala, geamuri termopan, usa la intrare.
Fiecare unitate locativa datorita pozitionarii scarilor interioare poate fi impartita in 3 apartamente independente, cate unul pe fiecare nivel ,deci poate fi privita si ca o investitie din foarte multe puncte de vedere.
Opinia agentului
"Constructie realizata cu materiale de calitate, situata intr-o locatie linistita, ce ofera o panorama deosebita asupra zonei."



