Casa 5 camere de vanzare in Cluj-Napoca, Andrei Muresanu ID 5473
Dotari imobil
Beton
Detalii imobil
PARTER: 1 camera de zi, 1 bucatarie, 1 camara, 2 holuri, 1 baie, casa scarii, 1 terasa.
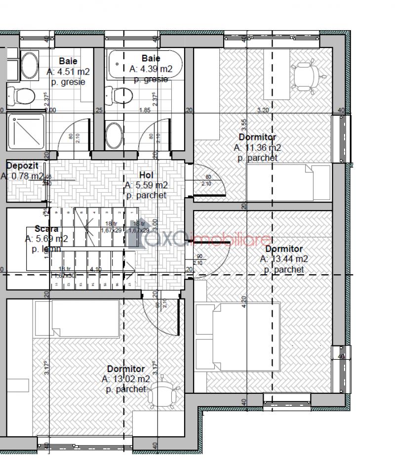
ETAJ: 3 dormitoare, hol, 2 bai, spatiu pentru depozitare.
MANSARDA: 1 camera hobby, 1 baie + POD.
Descriere imobil
Oferim spre vanzare casa cu arhitectura moderna, spatioasa si frumos compartimentata, situata in Cluj-Napoca, in cartierul Andrei Muresanu, intr-o locatie linistita de case, in imediata apropiere de centrul orasului. Locatia este recomandata pentru familii.
Vecinatati: Piata Cipariu, cartierele Gheorgheni, Buna Ziua, Borhanci, Becas etc.
Imobilul are o suprafata utila generoasa de 190 mp si dispune de 150 mp de teren imprejmuit.
Regimul de inaltime este D+P+E+M/POD.
Compartimentare:
DEMISOL: 3 spatii tehnice, 1 coridor.
PARTER: 1 camera de zi, 1 bucatarie, 1 camara, 2 holuri, 1 baie, casa scarii, 1 terasa.
ETAJ: 3 dormitoare, hol, 2 bai, spatiu pentru depozitare.
MANSARDA: 1 camera hobby, 1 baie + POD.
Incaperile sunt spatioase si luminoase.
Se vinde la stadiul de semifinisat.
Dispune de centrala termica, geamuri termopan si usa la intrare.
Suprafete:
DEMISOL: Spatiu tehnic 1 (20.32 mp), spatiu tehnic 2 (15.16 mp), spatiu tehnic 3 (1.94 mp), coridor (5.06 mp).
PARTER: Living (25.62 mp), hol 1 (6.92 mp), hol 2 (2.29 mp), bucatarie (13.78 mp), camara (1.32 mp), baie (2.61 mp).
ETAJ: Dormitor 1 (11.36 mp), dormitor 2 (13.44 mp), dormitor 3 (13.02 mp), hol (5.59 mp), spatiu depozitare (0.78 mp), baie 1 (4.39 mp), baie 2 (4.51 mp), casa scarii (5.69).
MANSARDA: camera hobby (22.58 mp), baie (7.47 mp), casa scarii (5.69 mp).
Opinia agentului
" O locuinta moderna si spatioasa, frumos compartimentata, ce pune accent pe confort. Casa situata intr-o locatie linistita si aerisita din cartierul Andrei Muresanu, foarte aproape de centrul orasului. "



