Casa 4 camere de vanzare in Cluj-Napoca, Gheorgheni ID 5917
Dotari imobil
Beton
Detalii imobil
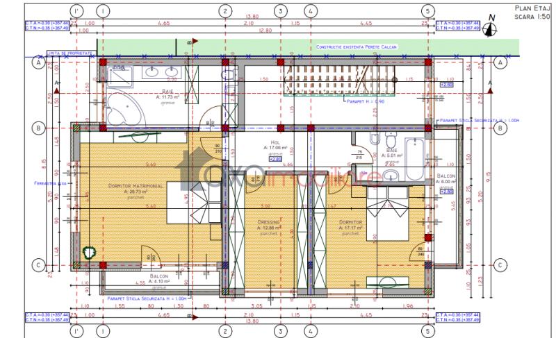
ETAJ / AL DOILEA NIVEL: Hol, 1 dormitor matrimonial (cu baie proprie si balcon), 1 dormitor simplu, 1 dressing, 1 baie, 1 balcon.
ETAJ RETRAS / AL TREILEA NIVEL: 1 dormitor, 1 hol, 1 dressing, 1 baie, 1 terasa (70.83 mp).
Descriere imobil
De vanzare Proiect cu Autorizatie de construire pentru casa individuala cu regim de inaltime P+E+ER; teren de 300 mp, front de 12,4 ml; imobil situat in Cluj-Napoca, in cartierul Gheorgheni, intr-o zona de case/vile, in apropiere de strada Take Ionescu.
Suprafata utila a casei este de 210 mp, iar cea construita este de 269 mp.
Compartimentare
PARTER / PRIMUL NIVEL: Hol, dining, 1 birou, 1 sas, 1 living, 1 bucatarie, 1 baie, scara interioara (acces etaje).
ETAJ / AL DOILEA NIVEL: Hol, 1 dormitor matrimonial (cu baie proprie si balcon), 1 dormitor simplu, 1 dressing, 1 baie, 1 balcon.
ETAJ RETRAS / AL TREILEA NIVEL: 1 dormitor, 1 hol, 1 dressing, 1 baie, 1 terasa (70.83 mp).
Pretul este de 195.000 Euro negociabil.
Opinia agentului
" Proiect cu Autorizatie de construire pentru casa individuala cu regim de inaltime P+E+ER; imobil situat in cartierul Gheorgheni, intr-o locatie linistita de case si vile; ideal pentru familii. "



