Casa 4 camere de vanzare in Cluj-Napoca, Borhanci ID 4621
Dotari imobil
Beton
Detalii imobil
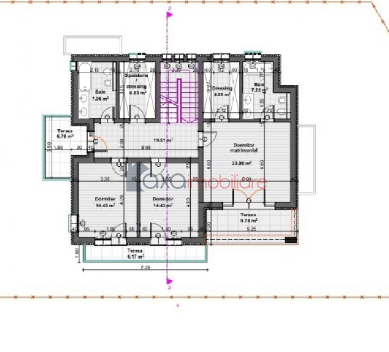
ETAJ / AL DOILEA NIVEL: 1 dormitor matrimonial (cu baie proprie, dressing si acces la terasa), 2 dormitoare, 1 dressing, 1 baie, hol si acces in pod.
Descriere imobil
Locuinta individuala deosebita, situata in Cluj-Napoca, in cartierul Borhanci, intr-o zona de case/vile, pe o strada retrasa, fiind ideala pentru cei care iubesc natura si linistea.
Recomand aceasta zona deoarece este aerisita si verde, fiind locul ideal pentru a locui la casa.
Imobilul este spatios, dispune de o suprafata utila de 200 mp, avand regim de inaltime P+E, cu acces in pod.
Divizarea spatiului este foarte bine gandita; asadar exista doua zone:
- Zona de socializare (la parter / primul nivel): 1 living generos, 1 bucatarie, 1 loc de luat masa, 1 baie, hol, camara, camera tehnica (acces direct la terasa si la parcare), 1 terasa.
- Zona de odihna (la etaj / al doilea nivel): 1 dormitor matrimonial (cu baie proprie, dressing si acces la terasa), 2 dormitoare, 1 dressing, 1 baie, hol si acces in pod.
Constructia este realizata din materiale de calitate superioara pentru a satisface cele mai exigente cerinte ale clientilor.
Casa este izolata termic (cu polistiren de 10 cm), dispune de tencuiala decorativa si de placari cu caramida aparenta, dand un aspect modern si stilat locuintei. Terasele dispun de balustrade din fier forjat, dar si din sticla, oferind eleganta casei.
In ceea ce priveste interiorul, acesta este la stadiul de semifinisat avand toate instalatiile electrice si sanitare trase pe pozitie, peretii sunt gletuiti, pardoseala este izolata cu polistiren, sapa este elicopterizata.
De asemenea, casa dispune de incalzire in pardoseala si de ferestre termoizolante cu 5 camere si 3 foi de sticla.
Parcarea este pavata; curtea dispune de alei.
Termen de finalizare in Iunie 2018.
Opinia agentului
" Stilul elegant al arhitecturii, calitatea constructiei, divizarea spatiului sunt cateva aspecte importante pentru care recomand cu incredere aceasta proprietate de lux. Confortul de care dispune, atentia la detalii, dar si locatia deosebita, transforma aceasta casa in caminul ideal. "



