Apartament 3 camere de vanzare in Floresti ID 6524
Dotari imobil
Beton
Descriere imobil
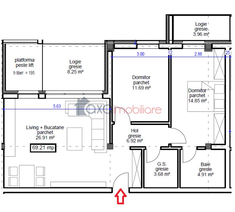
De vanzare apartament cu 3 camere, semifinisat, suprafata utila 69 mp, situat in Floresti, pe strada Sub Cetate; intr-o locatie frumoasa, nou-dezvoltata, cu acces usor spre punctele de interes.
Zona cu acces usor spre statia de autobuz, magazine, supermarket-uri, farmacie, cabinet medical, restaurant, salon de infrumusetare, gradinita etc.
Pozitionare
Etaj intermediar (3/4) intr-un bloc nou dotat cu lift.
Imobilul este in curs de finalizare.
Compartimentare
1 living cu 1 bucatarie de tip open space
2 dormitoare
2 bai
1 hol
2 logii.
Unul din dormitoare este matrimonial (dispune de baie proprie, dar si de acces in logie).
Se vinde la stadiul de semifinisat cu toate utilitatile trase la pozitie (apa, gaz, electricitate, canalizare, cablu TV, interfon).
Dotari
Centrala termica, incalzire in pardoseala, geamuri termopan, usa antiefractie.
Opinia agentului
" Apartament cu o compartimentare frumoasa si moderna, pozitionat la etaj intermediar intr-un ansamblu rezidential nou. Blocul dispune de lift, dar si de locuri de parcare in garajul subteran. Utilitati trase la pozitie, incalzire in pardoseala, locatie foarte frumoasa. Sub Cetate, Floresti. "



