Apartament 3 camere de vanzare in Cluj-Napoca, Manastur ID 5616
Dotari imobil
Beton
Descriere imobil
Oferim spre vanzare apartament cu 3 camere, cu suprafata utila de 75 mp + 1 balcon deschis, situat in Cluj-Napoca, in cartierul Manastur, in zona strazii Arinilor, intr-o locatie linistita, in apropiere de facilitati.
Pozitionare: etaj intermediar intr-un bloc dispus pe regim de inaltime P+8E, dotat cu lift si interfon.
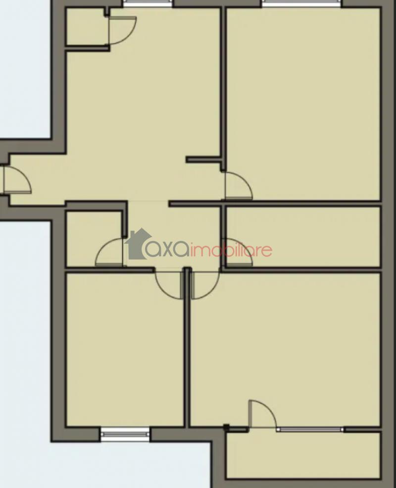
Compartimentare: 3 camere decomandate, 1 bucatarie spatioasa, hol, 2 bai + 1 balcon deschis cu o panorama frumoasa asupra zonei.
Dotari: centrala termica, calorifere, geamuri termopan, usa antiefractie, usi interioare.
Finisaje: parchet din lemn masiv, gresie, faianta, vopsea lavabila.
Utilitati: apa, electricitate, gaz, canalizare, interfon, internet, TV cablu.
Apartamentul dispune de boxa (inclusa in pret), dar si de 1 garaj.
De asemenea, are acces la uscatorie (pe palier).
Opinia agentului
" Avantajele ofertei: confort marit, compartimentare decomandata, etaj intermediar, priveliste frumoasa, locatie linistita cu facilitatile in imediata vecinatate. "



