Apartament 3 camere de vanzare in Cluj-Napoca, Iris ID 5725
Dotari imobil
Beton
Descriere imobil
Oferim spre vanzare apartament cu 3 camere, semifinisat, compartimentat modern, situat in Cluj-Napoca, in cartierul Iris, in zona strazii Oasului, intr-o locatie linistita, cu priveliste frumoasa.
Pozitionare: etaj intermediar / S+P+3E+ER intr-un bloc nou dotat cu lift.
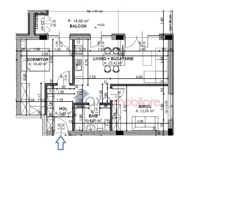
Suprafata utila este de 59.93 mp + 1 terasa de 14.6 mp.
Compartimentare: 1 living cu bucatarie, 1 dormitor, 1 birou, 1 hol, 1 baie. Accesul pe terasa se face atat din living si bucatarie, cat si din dormitor.
Dotari: centrala termica, geamuri termopan, usa antiefractie.
Se vinde la stadiul de semifinisat si cu utilitatile trase la pozitie.
Opinia agentului
" Apartament pozitionat la etaj intermediar intr-o constructie noua din cartierul Iris, potrivita celor care doresc sa locuiasca intr-o locatie linistita, nou-dezvoltata. "



