Apartament 2 camere de vanzare in Floresti ID 5973
Dotari imobil
Beton
Descriere imobil
Propunem spre vanzare apartament cu 2 camere, la stadiul de semifinisat, situat in Floresti, in zona strazii Florilor, intr-un ansamblu rezidential foarte cochet, cu acces usor si simplu spre punctele de interes.
Locatia este nou-dezvoltata; facilitatile se afla in imediata vecinatate, iar privelistea este una frumoasa.
Vecinatati
Statia de autobuz, magazine, supermarket-uri, gradinita, saloane de infrumusetare, cabinete medicale, zone/spatii verzi etc.
Pozitionare
Etaj intermediar / 2S+D+P+2E+ER intr-un bloc nou dotat cu lift si parcari la subsol.
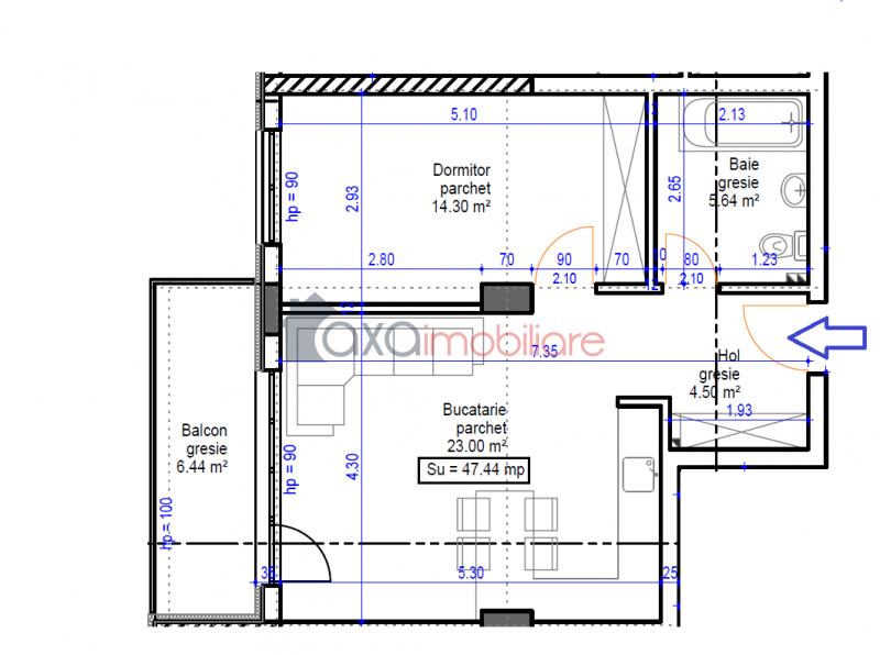
Suprafata utila este de 47.44 mp + 1 balcon de 6.44 mp.
Compartimentare
1 living cu bucatarie de tip open space
1 dormitor cu dressing
1 hol cu dressing
1 baie
1 balcon (deschis si finisat).
Se vinde la stadiul de semifinisat cu toate utilitatile trase la pozitie (apa, gaz, electricitate, canalizare).
Dotari
Centrala termica, calorifere, geamuri termopan, usa antiefractie.
Posibilitate de achizitionare loc de parcare in garajul de la subsol.
Termen de finalizare: Octombrie 2021.
Opinia agentului
" Apartament pretabil pentru investitie datorita suprafetei si compartimentarii. De asemenea, imobilul este pretabil si pentru locuit, poate fi ideal pentru un cuplu. Locatia este foarte buna, accesul este usor si simplu, compartimentarea este bine gandita, iar constructia este de calitate superioara. Ansamblu rezidential dotat cu lifturi, situat in apropiere de facilitati. "



