Apartament 2 camere de vanzare in Cluj-Napoca, Zorilor ID 3898
Dotari imobil
Descriere imobil
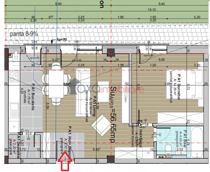
Oferim spre vanzare apartament cu 2 camere, semifinisat, ce dispune de o suprafata utila de 56 mp, pozitionat la etaj intermediar, intr-un bloc nou din cartierul Zorilor, zona Leroy Merlin.
Locatia este linistita, cu spatii verzi.
Imobilul este compus dintr-un hol cu spatiu pentru depozitare, 1 living cu 1 bucatarie de tip open space, 1 dormitor, 1 baie si 1 balcon.
Se vinde cu centrala termica (Buderus sau Wiesmann), calorifere, geamuri termopan cu 3 sticle Rehau si usa metalica la intrare.
Informatii:
* termen de finalizare Iulie-August 2017.
* pretul este negociabil in functie de modalitatea de plata.
* exista posibilitate de cumparare loc de parcare.
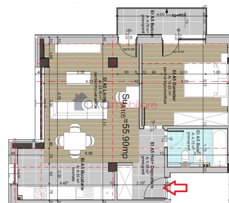
* aceleasi compartimentari si suprafete sunt disponibile si la parter.
Opinia agentului
Imobil nou, semifinisat, potrivit pentru un cuplu care doreste sa locuiasca intr-o locatie linistita din cartierul Zorilor.



