Apartament 2 camere de vanzare in Cluj-Napoca, Marasti ID 2886
Pret:
54 528 EURO
Pret/mp:
1 200 EURO/m2
Nr. camere:
2
Etaj:
1/5
Bloc Nou:
da
Anul constructiei:
2015
Finalizat:
da
Data finalizarii:
Aprilie 2016
Confort:
1
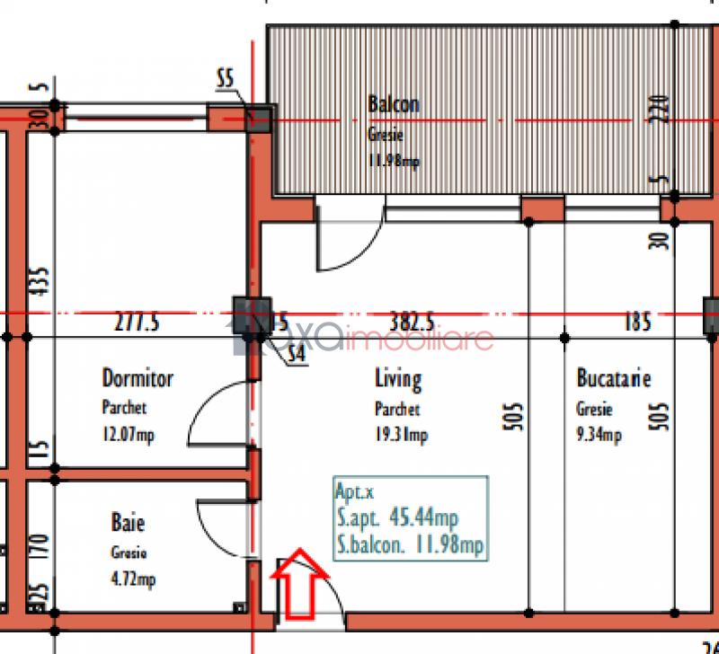
Suprafata utila:
45.44 m2
Balcoane:
1
Localitate:
Cluj-Napoca
Cartier:
Marasti
Zona:
Iulius Mall
Adaugat in data:
09-10-2015
Actualizat in data:
12-08-2025
Vizite oferta:
12202
Dotari imobil
Bucatarie:
1
Bai:
1
Parcare:
nu
Beci:
nu
Decomandari:
Semidecomandat
Finisaje:
Semifinisat
Mobilat:
nu
Utilat:
nu
Constructie:
Caramida
Geamuri termopan
Usa antiefractie
Centrala termica
Contoare gaz
CF
Descriere imobil
De vanzare, apartament cu 2 camere, cu suprafata utila de 45.44 mp, semidecomandat, pozitionat la etajul 1 al unui imobil nou cu regim de inaltime S+P+5E.
Apartamentul este situat in cartierul Marasti, zona Iulius Mall, intr-o locatie ce ofera diverse facilitati in imediata apropiere.
Este compus dintr-un living cu 1 bucatarie de tip open space, 1 dormitor, 1 baie si 1 balcon.
Dispune de centrala termica, geamuri termopan cu tamplarie din PVC si usa metalica la intrare.
Se vinde la stadiul de semifinisat cu sapa autonivelanta si peretii gletuiti.
Aceleasi compartimentari si suprafete se pot achizitiona atat la parter, cat si la etajele 1, respectiv 2.
Folositi formularul de mai jos pentru a ne contacta
Persoana de contact: Secretariat
Telefon: 0742/130130
0264/333147
Fax: + 40 264 333 147
Email: office@axaimobiliare.com
Adresa: Cluj-Napoca, Str. Memorandumului, nr. 19



