Apartament 2 camere de vanzare in Cluj-Napoca, Intre Lacuri ID 2488
Pret:
49 875 EURO negociabil
Pret/mp:
1 150 EURO/m2
Nr. camere:
2
Etaj:
1/5
Bloc Nou:
da
Anul constructiei:
2015
Finalizat:
da
Data finalizarii:
2016
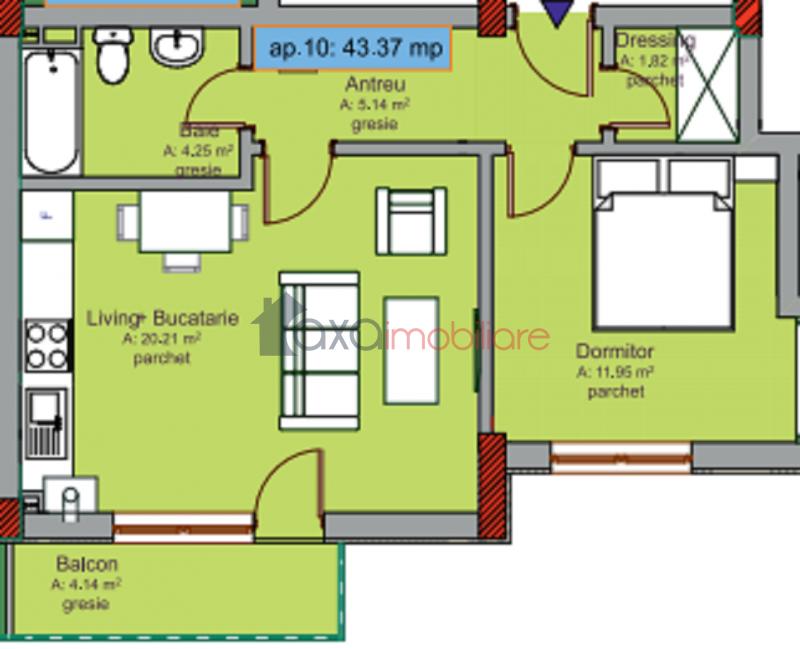
Suprafata utila:
43.37 m2
Balcoane:
1
Localitate:
Cluj-Napoca
Cartier:
Intre Lacuri
Zona:
Iulius Mall
Strada:
Tulcea
Adaugat in data:
16-07-2015
Actualizat in data:
17-07-2025
Vizite oferta:
14786
Dotari imobil
Bucatarie:
1
Bai:
1
Parcare:
nu
Beci:
nu
Decomandari:
Semidecomandat
Finisaje:
Semifinisat
Mobilat:
nu
Utilat:
nu
Constructie:
Caramida
Geamuri termopan
Usa antiefractie
Centrala termica
Contoare gaz
CF
Descriere imobil
Va propunem spre vanzare apartament cu 2 camere, suprafata utila 43.37 mp, imobil nou, semifinisat, situat in zona strazii Tulcea din cartierul Intre Lacuri. Vecinatati: Iulius Mall, statia de autobuz, FSEGA, parcuri etc. Apartamentul este pozitionat la etajul 1 al unui imobil nou, cu 5 etaje. Compartimentarea este semidecomandata si gandita astfel: 1 living cu 1 bucatarie de tip open space, 1 dormitor, 1 dressing, 1 baie, 1 hol si 1 balcon. Imobilul are in dotare centrala termica proprie, geamuri termopan cu tamplarie din PVC si usa metalica la intrare. Se vinde la stadiul de semifinisat cu sapa autonivelanta si peretii gletuiti.
Folositi formularul de mai jos pentru a ne contacta
Persoana de contact: Secretariat
Telefon: 0742/130130
0264/333147
Fax: + 40 264 333 147
Email: office@axaimobiliare.com
Adresa: Cluj-Napoca, Str. Memorandumului, nr. 19



