Apartament 2 camere de vanzare in Cluj-Napoca, Grigorescu ID 2502
Dotari imobil
Descriere imobil
Propunem spre vanzare apartament cu 2 camere, situat in zona Piata 14 Iulie din cartierul Grigorescu, intr-o locatie ce ofera diverse facilitati in imediata apropiere: statia de autobuz, magazine si gradinite.
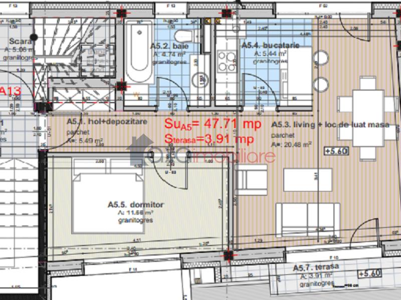
Apartamentul este situat la etajul 2 al unui imobil nou cu 2 etaje, ce va fi finalizat in August 2015 si are o suprafata de 47.71 mp utili.
Compartimentarea este semidecomandata si gandita astfel: 1 living cu 1 bucatarie de tip open space, 1 dormitor, 1 baie, 1 hol, 1 spatiu pt depozitare si 1 terasa.
Imobilul va avea in dotare centrala termica proprie, geamuri termopan cu tamplarie din PVC si usa metalica la intrare.
Se vinde la stadiul de semifinisat cu sapa autonivelanta si peretii gletuiti.
In pretul imobilului este inclus si 1 loc de parcare.



