Apartament 2 camere de vanzare in Cluj-Napoca, Calea Turzii ID 4410
Dotari imobil
Beton
Descriere imobil
Oferim spre vanzare apartament cu 2 camere, spatios si semifinisat, situat in Cluj-Napoca, in zona Calea Turzii, intr-o locatie nou-dezvoltata.
Apartamentul este pozitionat la etaj intermediar (4 / S+P+5E), intr-un bloc nou cu lift.
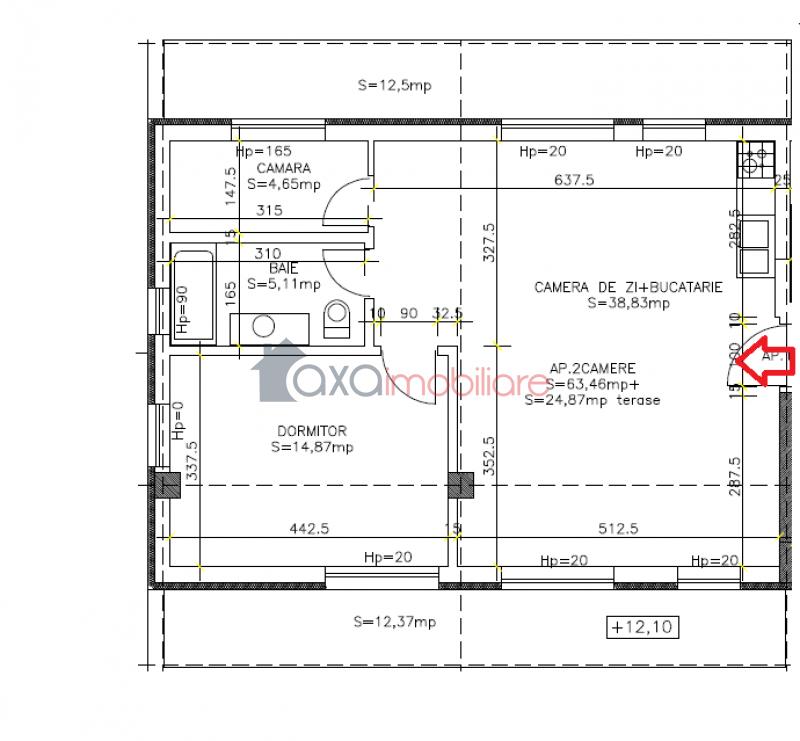
Dispune de o suprafata utila de 63.46 mp si de 2 terase (a cate 12.37 mp fiecare).
Compartimentare: living cu bucatarie open space, 1 camara, 1 dormitor, 1 baie si 2 terase.
Se vinde la stadiul de semifinisat.
Dotari incluse: centrala termica, calorifere, geamuri termopan si usa antiefractie.
Exista posibilitate de cumparare loc de parcare (exterior si/sau subteran).
Opinia agentului
" Recomand aceasta oferta clientilor mei care doresc sa locuiasca intr-un imobil nou si spatios. Apartamentul dispune de doua terase, ideale pentru relaxare. "



