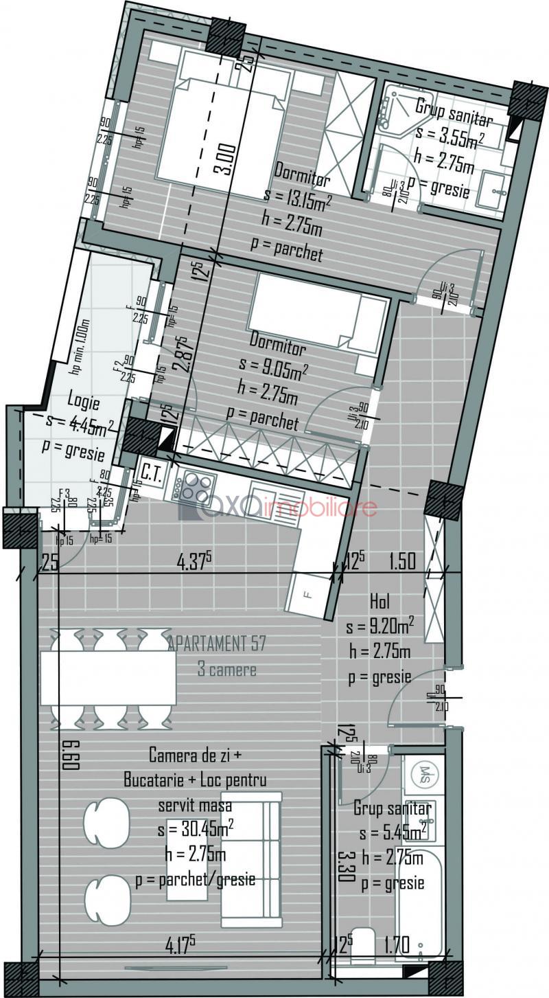
Apartment 3 rooms for sell in Cluj-napoca, Semicentral ID 5096
Price:
109 185 EURO negotiable
Price / sm:
1 450 EURO/m2
No. of rooms:
3
Floor:
3/5
New building:
yes
Build year:
2019
Finalized building:
yes
Finalized date:
2019
Comfort:
1
Build area:
75.3 m2
Balconies:
1
City:
Cluj-Napoca
Ward:
Semicentral
Zone:
P-ta Abator
Add date:
11-04-2019
Update date:
12-08-2025
Views number:
12498
Characteristic details
Kitchen:
1
Bathrooms:
2
Parking:
yes-Contra Cost
Cellar:
no
Divided:
Semi divided
Finishing:
Semi finishing
With furniture:
no
Fit out:
no
Build:
Bricks
Frostedglass windows
Metal door
Heat station
Gas counter
You can conctact us using the form below.
Contact person: Secretariat
Phone: 0742/130130
0264/333147
Fax: + 40 264 333 147
Email: office@axaimobiliare.com
Address: Cluj-Napoca, Str. Memorandumului, nr. 19



