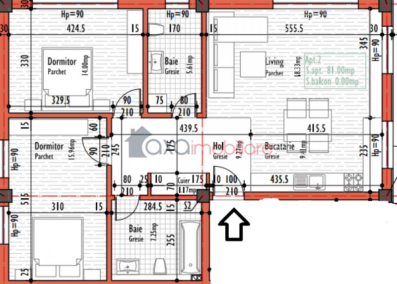
Apartment 3 rooms for sell in Cluj-napoca, Buna Ziua ID 2963
Price:
93 000 EURO
No. of rooms:
3
Floor:
Ground floor/2
New building:
yes
Build year:
2015
Finalized building:
no
Finalized date:
2016
Comfort:
Marit
Build area:
81 m2
City:
Cluj-Napoca
Ward:
Buna Ziua
Zone:
Lidl
Add date:
23-10-2015
Update date:
18-02-2025
Views number:
13905
Characteristic details
Kitchen:
1
Bathrooms:
2
Parking:
yes-Subterana
Cellar:
no
Divided:
Divided
Finishing:
Semi finishing
With furniture:
no
Fit out:
no
Build:
Bricks
Frostedglass windows
Metal door
Heat station
Gas counter
CF
You can conctact us using the form below.
Contact person: Ciuca Aurica
Phone: 0752/283205
Fax: + 40 264 333 147
Email: aurica@axaimobiliare.com
Address: Cluj-Napoca, Str. Memorandumului, nr. 19



