Apartment 2 rooms for sell in Floresti ID 6613
Price:
49 990 EURO
Price / sm:
943 EURO/m2
No. of rooms:
2
Floor:
Ground floor/3
New building:
yes
Build year:
2023
Finalized building:
no
Finalized date:
Martie 2024
Comfort:
1
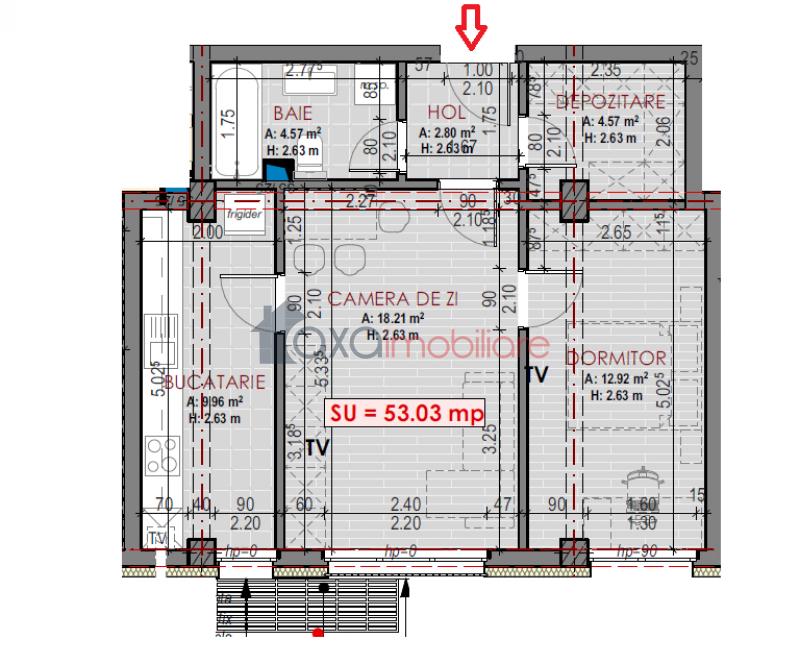
Build area:
53.03 m2
City:
Floresti
Zone:
Urusagului
Add date:
27-06-2023
Update date:
10-10-2023
Views number:
6427
Characteristic details
Kitchen:
1
Bathrooms:
1
Garage:
1 Contra cost
Parking:
yes-Contra cost
Cellar:
no
Finishing:
Semi finishing
With furniture:
no
Fit out:
no
Build:
BCA
Bricks
Concrete
Bricks
Concrete
Frostedglass windows
Metal door
Heat station
Gas counter
You can conctact us using the form below.
Contact person: Secretariat
Phone: 0742/130130
0264/333147
Fax: + 40 264 333 147
Email: office@axaimobiliare.com
Address: Cluj-Napoca, Str. Memorandumului, nr. 19



