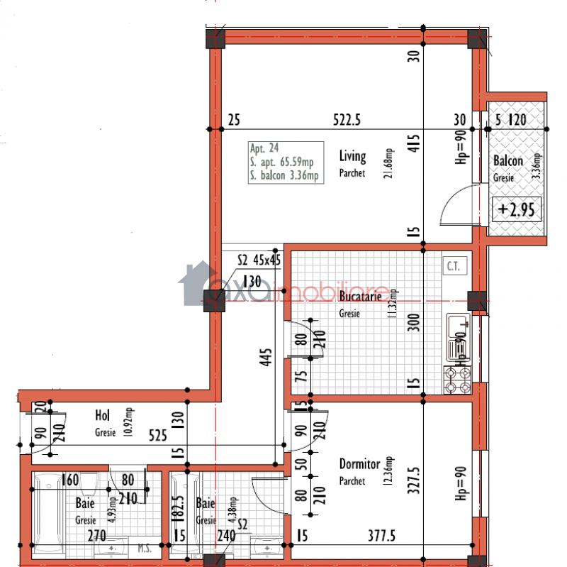
Apartment 2 rooms for sell in Cluj-napoca, Dambul Rotund ID 3457
Price:
64 680 EURO
Price / sm:
980 EURO/m2
No. of rooms:
2
Floor:
1/5
New building:
yes
Build year:
2016
Finalized building:
no
Finalized date:
2016
Comfort:
Marit
Build area:
66 m2
Balconies:
1
City:
Cluj-Napoca
Ward:
Dambul Rotund
Zone:
Scoala de Politie
Street:
Corneliu Coposu
Add date:
08-04-2016
Update date:
18-02-2025
Views number:
12034
Characteristic details
Kitchen:
1
Bathrooms:
2
Parking:
no
Cellar:
no
Divided:
Divided
Finishing:
Semi finishing
With furniture:
no
Fit out:
no
Build:
Bricks
Frostedglass windows
Metal door
Heat station
Gas counter
CF
You can conctact us using the form below.
Contact person: Ciuca Aurica
Phone: 0752/283205
Fax: + 40 264 333 147
Email: aurica@axaimobiliare.com
Address: Cluj-Napoca, Str. Memorandumului, nr. 19



